New MRA Building Conference Room Content Banner

Conference Room Naming Contest

As you all know, MRA Wisconsin is moving to a new building. Our new office space has eight internal conference rooms, and we are asking for your input to help name them!

  • Contest Overview

    Contest Overview

    MRA is holding a contest until end of day, Wednesday, March 3rd to name our conference rooms. The contest winner will have the prestige of originating the naming convention (priceless!) and receive a $200 Amazon gift card.

    Here are some considerations to get your creative ideas flowing:

    • Select a theme (e.g., geographic points of interest, famous leaders, sports or recreation, iconic landmarks, things of regional importance or historical significance, etc.)
       
    • Identify 8 names consistent with your selected theme that would be appropriate for identifying MRA’s conference rooms. Names can be fun, inspiring, or serious.

    MRA’s Senior Team, along with representatives from Thysse, MRA’s environmental graphics design partner, will evaluate the themes/names and select a winner to be announced on Friday, March 12th.

    If you would like to participate in this contest, please complete the contest form below. Thank you!

  • Photo Renderings

    Photo Rendering Samples

    New MRA Building Conference Room Rendering: Near Reception Desk
    Conference room near reception desk (holds 10)
    New MRA Building Conference Room Rendering: Internal
    Conference room internal employee area
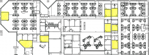
  • Room Space

    Room Space

    New MRA Building Floor Plan Labeled
Please describe the theme you are proposing and why.
Please provide the eight names you are suggesting.